✨ Этот товар можно изготовить на заказ с учетом Ваших пожеланий. Мы оперативно произведем и отправим в любой город. Подробности уточняйте у наших менеджеров.
📦 Этот товар можно изготовить на заказ с учетом Ваших пожеланий. Мы оперативно произведем и отправим в любой город. Подробности уточняйте у наших менеджеров.
Найдём способ сэкономить!
Мы понимаем: иногда важно уложиться в бюджет. Хорошая новость — в большинстве случаев цену можно снизить. Выберите подходящий вариант:
1) Удешевить товар за счёт изменений в конструкции/комплектации
Самый быстрый способ снизить стоимость — упростить товар. Можно изменить: размеры, материалы, комплектацию, функциональность, дизайн.
2) Пересчитать цену на товар «под заказ»
Если товар изготавливается под заказ, мы можем оптимизировать стоимость: подобрать выгодные материалы, оптимизировать логистику, предложить альтернативы без потери качества.
3) Получить оптовую скидку (от 2-х единиц)
Планируете купить несколько товаров? Чем больше количество — тем выгоднее цена.
4) Нашли дешевле на другом сайте?
Пришлите ссылку на российский сайт — постараемся предложить условия выгоднее.
Напишите нам удобным способом, укажите интересующий вариант:
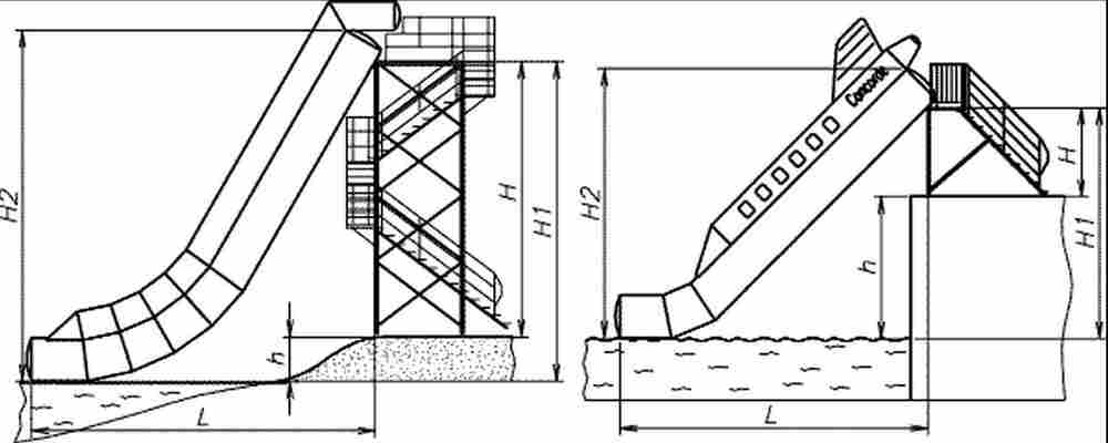
Схема установки больших надувных водных горок на пляже
Надувную водную горку можно устанавливать как на вышке-опоре, так и на любом подходящем береговом сооружении, например, пирсе или солярии. Также возможно комбинированное решение, при котором береговое сооружение частично уменьшает высоту вышки-опоры, что позволяет снизить ее стоимость.
Параметры установки:
- H – высота вышки-опоры.
- H1 – высота стартовой площадки относительно нижней точки желоба.
- H2 – стартовая высота относительно нижней точки желоба.
- L – расстояние от нижнего края желоба до вышки-опоры.
- h – высота основания вышки-опоры относительно уровня воды.
Требования безопасности:
- Глубина водоема в месте, где заканчивается желоб, должна быть не менее 1 метра.
- Дно водоема должно быть ровным, без опасных объектов: выступов, камней, коряг, мусора и других препятствий.
Выбор места установки:
Расположение вышки-опоры определяется с учетом величины L, указанной в технических характеристиках горки. Высота вышки рассчитывается по формуле:
H = H1 - h,
где:
- H1 – высота стартовой площадки.
- h – высота основания вышки относительно уровня воды.
Установка горки с надувным бассейном:
При использовании горки с надувным бассейном установка должна производиться исключительно на ровной горизонтальной площадке. В таком случае высота вышки равна высоте стартовой площадки (H = H1).
Размер площадки определяется следующим образом:
- Длина: L + Lбас + Lвышки, где:
- Lбас – длина надувного бассейна.
- Lвышки – длина вышки-опоры.
Ширина площадки указывается в технических характеристиках горки.
-
«Головокружительный спуск 2» — это профессиональная прямая водная горка для вышки, созданная для интенсивной коммерческой эксплуатации на открытом воздухе и в водных комплексах. Аттракцион относится к категории «НАЗЕМНЫЕ АКВАПАРКИ И ВОДНЫЕ ГОРКИ» и ориентирован на площадки, где важно быстро привлечь поток посетителей и получить прогнозируемую выручку. Габариты 10x2x7 м позволяют сформировать эффектный силуэт, заметный с большого расстояния, а старт с высоты около 5,5 м обеспечивает динамичный, но контролируемый спуск по прямой траектории желоба. Скат рассчитан на одного пользователя одновременно, что упрощает контроль очереди и повышает безопасность.
Основа конструкции — герметичные надувные элементы из армированного непрозрачного ПВХ повышенной износостойкости с плотностью до 1100 г/м² и рабочей толщиной от 0,55 до 0,9 мм. Материал устойчив к ультрафиолету, перепадам температур от 0 до 65 °C и неоднократным циклам накачивания. Скат и борта интегрированы таким образом, чтобы удерживать пользователя в пределах дорожки, а верхняя часть стартовой зоны оснащена ограждением. Лестничный модуль соединён с площадкой старта и вынесен в отдельный проём, что снижает пересечение потоков и позволяет оператору легко контролировать движение гостей. Опора — металлическая вышка с системой герметичных батутных элементов, которые дополнительно демпфируют нагрузки и обеспечивают устойчивость при работе.
Горка специально спроектирована для размещения на открытых водоёмах: на пляжах озёр и рек, в морских аквазонах при наличии разрешений и безопасной глубины. Она одинаково органично вписывается в инфраструктуру баз отдыха, кемпингов и туристических комплексов, а также может быть установлена в аквапарках и на стационарных бассейнах при наличии отдельной зоны приводнения и соблюдении глубин. Для развлекательных парков, детских лагерей и сезонных фестивалей такое решение работает как яркий «якорный» аттракцион, который легко монетизировать через платные спуски, тайм-слоты или включение в стоимость дневного прохода. На корпоративных и частных мероприятиях горка создаёт эффект вау-зоны, превращая обычную площадку у воды в мини-аквапарк.
Эксплуатация максимально проста: надувная оболочка поддерживает рабочее давление за счёт непрерывной подачи воздуха, а вода подаётся на скат по шлангам от насоса, формируя равномерную водяную плёнку для комфортного скольжения и мягкого торможения в зоне финиша. Электропитание 180–240 В с частотой 50–60 Гц позволяет использовать стандартную инфраструктуру большинства баз и парков. Ориентировочная потребляемая мощность — около 1,5 кВт, что делает ежедневные операционные расходы предсказуемыми. При грамотной организации очередности спусков и позиционировании как «скоростной прямой горки» средняя дневная прибыль способна достигать 10 000 рублей; в сезонной модели это обеспечивает окупаемость от 24 дней.
Безопасность заложена в саму компоновку: борта желоба предотвращают выход пользователя за пределы ската, а верхняя зона со стартовым ограждением дисциплинирует посадку. Герметичность воздушных камер избавляет от неожиданной потери формы, а жёсткие узлы крепления к основанию обеспечивают устойчивость к ветровым нагрузкам в рекомендованных пределах. Температурный режим эксплуатации рассчитан на тёплый сезон, при этом материал сохраняет эластичность и внешний вид в течение длительного времени. В комплекте поставляется насосное оборудование для накачивания, ремонтный комплект с запасным ПВХ и чехол для хранения межсезонно. Русскоязычная документация включает инструкцию по эксплуатации, паспорт изделия, сертификат на насос и декларацию соответствия требованиям ТР ЕАЭС 038/2016 «О безопасности аттракционов», что упрощает согласования с арендодателями площадок и контролирующими органами.
Для бизнеса важна гибкость — и «Головокружительный спуск 2» легко адаптируется под задачу площадки. Возможны изменения длины, ширины и высоты, подбор цветовой схемы под фирменный стиль, нанесение бренд-графики и рекламных сообщений на борта и стартовую зону. Такая кастомизация помогает интегрировать аттракцион в визуальную среду курорта или использовать его как спонсорский объект: логотипы партнёров, временные акции, QR-навигация на кассы и маркетплейсы — всё это превращает горку в медийный носитель, который сам окупает часть расходов.
При выборе локации стоит учитывать доступ к электроснабжению и воде, ровную твёрдую площадку под вышку, а также правильную организацию потока гостей: информирующие стенды с правилами и ограничениями, выделенная зона ожидания, контроль посадки оператором. На пляжах озёр и рек лучше располагать горку так, чтобы зона приводнения оставалась видимой для персонала, а на морских пляжах — учитывать волну и регламент местной администрации. В аквапарках и бассейнах аттракцион логично выделить в самостоятельный маршрут с собственным контролем времени спуска. Благодаря гарантии 24 месяца и высокой ремонтопригодности ПВХ-узлов владелец получает надёжный актив на несколько сезонов, который сохраняет презентабельный вид и не требует сложного сервиса.
«Головокружительный спуск 2» — это инвестиция в устойчивый поток посетителей. Эффектная высота, яркая расцветка, прямой скоростной профиль и продуманная конструкция делают горку сильным центром притяжения для семейной аудитории и молодёжи. А возможность подгонки размеров и внешнего вида под конкретную площадку позволяет одинаково успешно использовать её на северных озёрных курортах, южных морских пляжах, в загородных отелях, кемпингах и городских водных фестивалях. Если вам нужна наглядная точка роста выручки в горячий сезон — этот аттракцион решает задачу быстро, надёжно и эффектно.
Надувные батуты с бассейнами
Водные горки 13x5x6 м - оплата при получении после осмотра в транспортной компании
Коммерческий надувной батут 5x5x4 м
Высококачественные материалы (ПВХ до 1100 г/м²) и усиленные швы (2-8 линий)
Идеальное применение: пляжи, парки, курорты, мероприятия
Полный ассортимент продукции БатутМастер
Водные горки в наличии и на заказ
Надежные крепления из нержавеющей стали
Компактная водная горка 7x2,5x4 м
Огромный аквапарк 21x20x6 м с тематическими фигурами
Водные горки 9x4x4,8 м с яркими рисунками
НАДУВНЫЕ ВОДНЫЕ АКВАПАРКИ И ГОРКИ ОТ ПРОИЗВОДИТЕЛЯ
БОЛЕЕ 1000 МОДЕЛЕЙ – от компактных до огромных решений для бизнеса!
ПОД ЗАКАЗ создадим любую конфигурацию. БЕСПЛАТНАЯ 3D-МОДЕЛЬ!
ОПЛАТА ПРИ ПОЛУЧЕНИИ! Осмотр на терминале транспортной компании.
РАССРОЧКА И КРЕДИТ! Одобрение за несколько минут!
ПРЕИМУЩЕСТВА:
- ✔ Прочный ПВХ до 1100 г/м² и толщина до 0,9 мм
- ✔ Усиленные швы (2-8 линий), сваренные внахлест
- ✔ Антискользящие лестницы с канатами
- ✔ Крепления из нержавеющей стали
- ✔ Полный комплект документов по ГОСТу
- ✔ Расширенная гарантия и бесплатные консультации


Качество батутов
Материал
Сертифицированный ПВХ толщиной 0.55 мм, плотностью до 690 г/м². Высокие показатели прочности, не выцветает, не горит, широкий температурный диапазон.

Пошив
От 2 до 8 линий швов в зависимости от напряжения зоны. Минимум 5 швов на 2.5 см. Качественные нейлоновые нити из 9 переплетённых волокон.
Качество бассейнов
Материал
Бассейны из ПВХ толщиной 0.9 мм, плотностью 1100 г/м². Один из самых качественных материалов.

Швы
Сварка внахлест на специальном станке. Ширина сварного шва от 2.5 см.

Клапаны
Специальные клапаны для накачки. Выдерживают множество циклов открытие/закрытие.
Дизайн и брендирование
Аттракционы адаптируются под уникальные условия. Возможность брендирования и особенного дизайна по желанию заказчика.
Комплектация
Насос
Лучшие насосы адаптированные под российские электросети. Низкий шум, безопасность, большой воздушный поток.

Документация
Полный пакет документов: паспорт аттракциона, сертификаты, инструкция по эксплуатации в соответствии с ГОСТ.
Видео о батутах:
Заинтересовались? Свяжитесь с нами!
Компания "БатутМастер" - более 15 лет на рынке. Крупнейший производитель в РФ и СНГ.
Для всех товаров предоставляем полный пакет документов:
- Декларации о соответствии требованиям технического регламента Таможенного союза (ТР ТС)
- Паспорта изделий и формуляры
- Руководства по эксплуатации и техническому обслуживанию
- Сертификаты качества евростандарта
- Санитарно-эпидемиологические заключения (СЭЗ)
- Сертификаты пожарной безопасности (при необходимости)
Вся продукция изготавливается по ГОСТу с обеспечением 100% постановки на учёт в Гостехнадзоре.
